Продам: здание в Нижнем Тагиле
Адрес: тельмана 23
21 октября 2025 г. в 08:36 объявление № Н-27993626
Нижний Тагил, ул. Тельмана . 23. район Дзержинский.
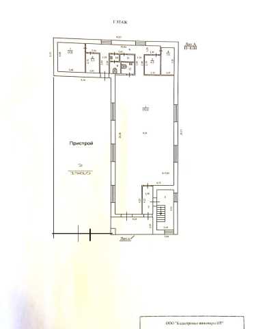
Продам отдельно стоящее здание 700 кв.м. (1 ый этаж 440кв.м., 2й этаж 260 кв.м.)
Земельный участок 600 кв.м. (ВРИ: для размещения объектов торговли,магазинов).
Все помещения в здании с ремонтом, центральными коммуникациями, Здание готово к эксплуатации, без дополнительный вложение.
Земельный участок, и здание - оформлены в собственность.
Имеется собственный узел учета тепловой энергии,что позволяет существенно экономить на коммунальных услугах.
Здание запитано напрямую от эл. подстанции, мощность электричества ,при необходимости, можно увеличить до 150 кВт.
Цена без НДС
Контакты
Постоянный адрес этого объявления:
https://tagil.barahla.net/nedvizhimost/kommercheskaya-nedvizhimost/27993626_prodam-zdanie.html(скопировать)

Не перечисляйте предоплату, если нет значительных оснований доверять продавцу.
При получении товара, в качестве которого вы сомневаетесь, возьмите расписку с продавца и перепишите паспортные данные.
«Барахла.нет» никогда не участвует в сделках и, соответственно, ничего не гарантирует покупателям и продавцам.